Договор аренды земельного участка для строительство многоквартирного дома № 14
- Подробности
- Категория: Новости
- Опубликовано 02.05.2023 09:10
Уважаемые жильцы и гости поселка!
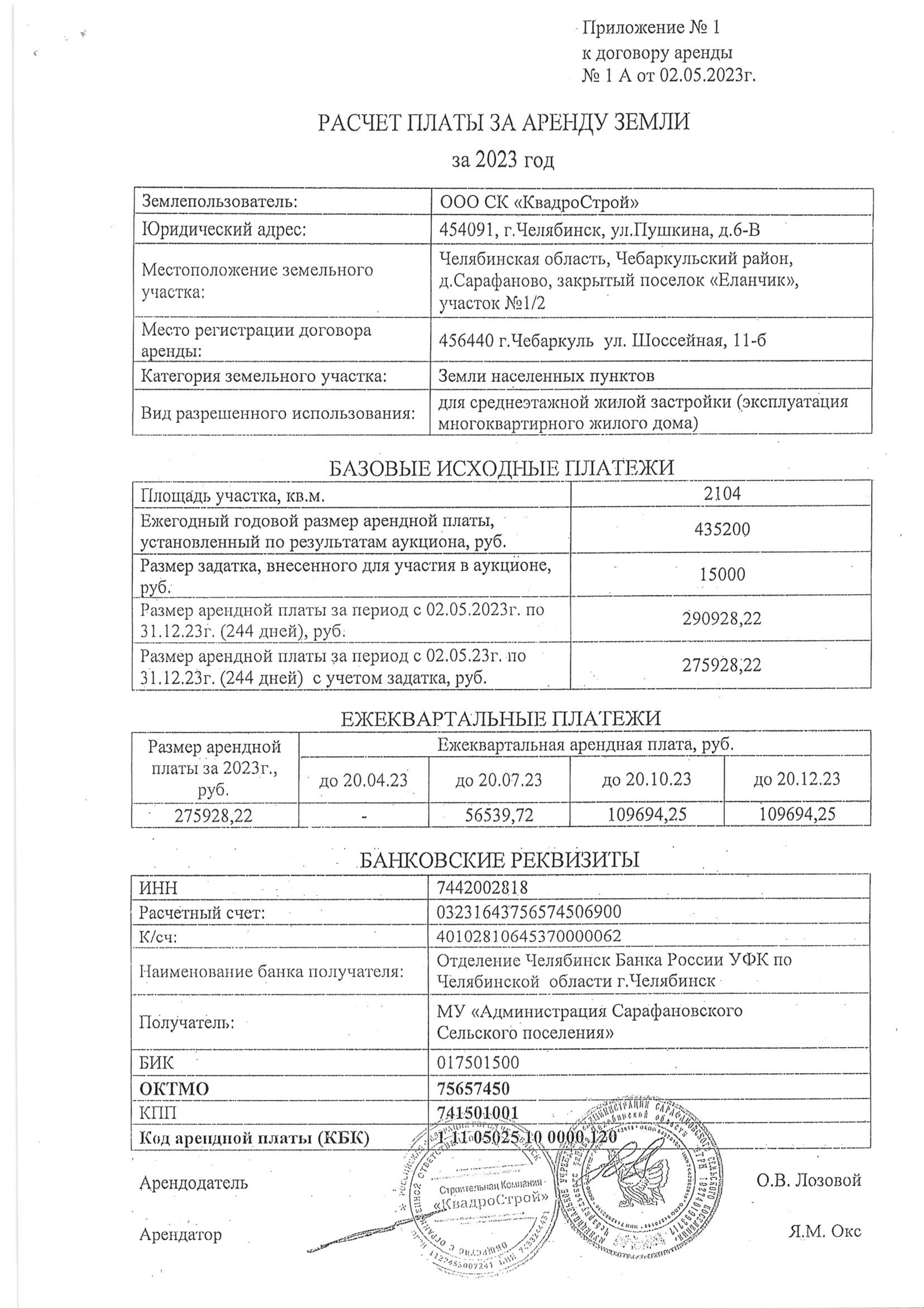
Организацией ООО СК "КвадроСтрой" был заключен договор аренды земельного участка, находящегося под площадкой теннисного корта (около дома №4 (бывш. №1) для строительства нового многоквартирного дома № 14.
Теннисный корт будет перенесен (вновь построен) рядом с баскетбольной площадкой.







